JavaScript is off. Please enable it to view the full site.

Aquinohof Amsterdam

© Quist Wintermans Architekten.

 

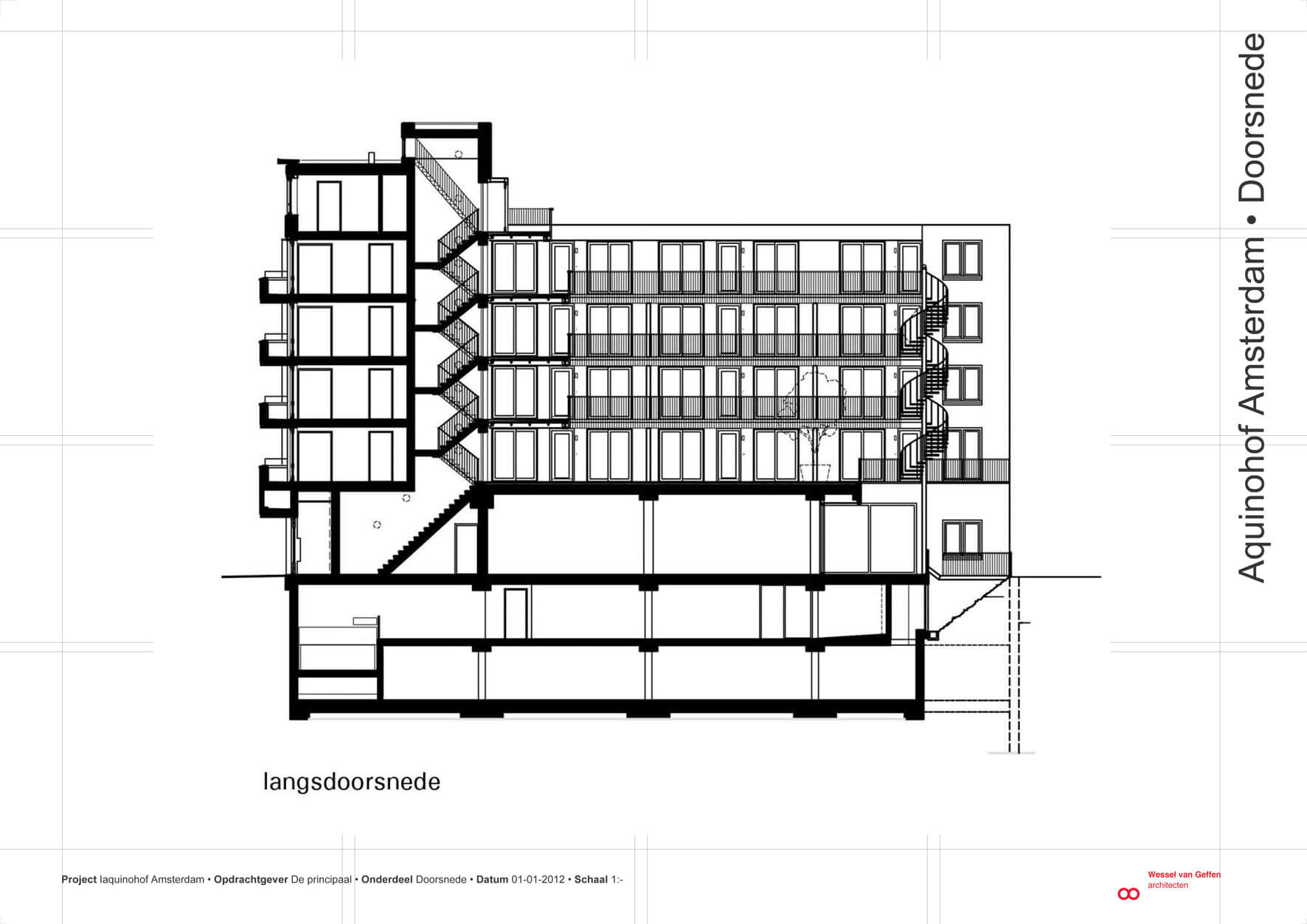
Het project voegt zich in de stedenbouwkundige en architectonische structuur van het Plan Zuid. De bouwmassa is vijf lagen hoog in de Rijn- en Vechtstraat. Aan de Lekstraat vormt een verhoging van het blok een accent op de hoek, die tevens verwijst naar het grote plein aan de Vechtstraat. Door de insnoering ter plaatse van de loggia’s wordt deze hogere schijf aan de Lekstraat extra geaccentueerd.

In de verdere architectonische uitwerking is de baksteenarchitectuur van de omringende blokken aan de Rijnstraat als uitgangspunt genomen. De gevels worden gemetseld met een geelgenuanceerde vormbaksteen. De begane grond heeft verdiepte neggen, de kozijnen op de verdiepingen liggen in het vlak van het metselwerk.

Aan de Rijn- en Vechtstraat is de bovenste bouwlaag in hout uitgevoerd.

De in hout uitgevoerde galerijen en gevels aan de binnenzijde van het bouwblok geven een eigen intiemer karakter aan de binnenwereld.

 

Op de  begane grond zijn publieksfuncties gelegen. Aan de Rijnstraat zijn dat bedrijfsruimten, op de hoek Vechtstraat-Lekstraat zit een buurtvoorzieningencentrum. In de twee kelderverdiepingen zijn parkeervoorzieningen en bergingen opgenomen.

De eerste vier verdiepingen bevatten acht ouderenwoningen variërend van 85 tot 114 m2. De vijfde verdieping aan de Lekstraat bevat twee grote woningen van 124 en 147 m2.

De woningen hebben de entree aan de Lekstraat en worden verder ontsloten via zuid georiënteerde U-vormige galerijen rondom een gemeenschappelijke binnen tuin op de eerste verdieping. Deze brede galerijen vormen tevens de buitenruimte voor de woningen.

Opdrachtgever(s)

De principaal

Omvang

34 woningen, parkeerkelder, dienstencentrum, comm. ruimte

Oplevering

2006

Adviseur(s)

Strackee bv Bouwadviesbureau

Huygen RI bv

Uitvoering

Bouwbedrijf Aan de Stegge

Rol

Architect(ass.) • Projectleider i.s.m. Paul Wintermans

Labels

18 Interieur 23 Wonen 8 Parkeren

Locatie: Amsterdam Zuid

  1. Transformatie Fruitweg 17
  2. Oranjepanden Amsterdam
  3. Kantoorgebouw Roofgarden Breda
  4. Kolenkitbuurt Amsterdam
  5. Aquinohof Amsterdam
  6. Balboaplein Amsterdam